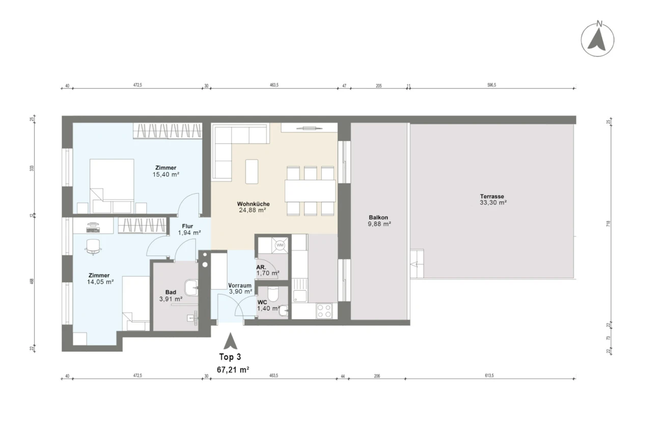
Top 3
Etage: 1. Obergeschoss
Daten im Überblick
| Straße | Schulstraße |
| Hausnummer | 6 |
| PLZ | 3300 |
| Ort | Amstetten |
| Wohnfläche | 67 m² |
| Anzahl Zimmer | 3 |
| Anzahl Schlafzimmer | 2 |
| Balkon/Terrasse Fläche | 43 m² |
| Anzahl Balkone | 1 |
| Anzahl Terrassen | 1 |
| Kaufpreis | 299.000 € |
| Provision | 3,6 % inkl. MwSt |
Kaufpreis